轮胎式集装箱起重机“油改电”方案之
电缆卷盘供电+锂电池转场方式介绍
一、 项目背景
在全球环境问题日益严峻的大背景下,节能减排已然成为了各个行业义不容辞的共同责任。在港口码头领域,打造绿色码头不仅是对环境保护的有力回应,更是实现可持续发展的必经之路。因此,加大对港口现有设备的节能改造力度和深度,以达到节约能源、减少污染排放、降低运营成本、提高经济效益、切实发挥设备最大经济价值的目的。
轮胎式集装箱起重机(以下简称“RTG”)作为港口集装箱堆场的主力起重装卸设备,其具有行走灵活、作业面积广等独特优势,然而,传统的 RTG 采用柴油发电机组驱动,需要经过热能、机械能等多次能量转换才能转化为电能进行驱动作业,如此繁杂的转换过程,导致能量转换效率低下,使得设备能耗居高不下,燃油成本节节攀升。不仅如此,RTG 的实际有效利用占比小,大部分时间都处于等待吊箱的待机消耗状态,空耗现象异常严重。更甚的是,柴油发电还会排放大量黑烟,产生巨大的噪音,同时后期维护成本很高。故而,对 RTG 实施“油改电”技术改造已是势在必行。
二、 技术实施方案
RTG推行“油改电”技术改造,将传统的柴油发电驱动转变为工业市电驱动,同时搭配锂电池储能系统和能量回馈系统,电池吸收了起升下降时的一部分势能,为RTG转场行走提供所需动力源,其余能量直接回馈给大电网,大大节约了能源。如此改造,不仅兼具了轨道式设备环保、能耗低的优势,还保留了轮胎式设备灵活转场的特点。接下来,将对 RTG“油改电”技术的实施进行详细分项介绍。
1、 主供电方式的改造
电缆卷盘供电系统主要由地面供电箱、电缆插头/插座、供电电缆、地面翻转装置、导缆架、电缆卷筒、主变压器、控制系统等各主要部件组成。RTG的供电从地面接线箱的快速插座引出,另一端通过电缆导向装置绕到卷盘上,电缆卷筒将低压电引至机上,然后通过滑环装置供电,通过降压变压器与原驱动电源连接,驱动相应各驱动单元。
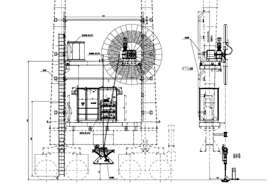
电缆卷筒一般需安装在RTG电气房对面鞍梁上部新增的承重平台上,电缆由中间位置接入,中心安装高度约8m位置。改造后的RTG见下图1:

图1 RTG“油改电”布局图
1)地面供电箱
每个集装箱堆场至少配备一只地面供电箱,每只电箱一般至少配两套插座,可满足供两台RTG同时使用。地面供电箱主要参数:
额定电压:AC1000V 50HZ 3P+PE;
额定电流:800A;
环境条件:空气温度-25℃~45℃, 相对湿度:最大100%(海洋气候);
防护等级:IP65;
接电箱安装方式:地上式。
地面接线箱内设置有安全开关,保证所有电缆插头的插拔操作均在无电的情况下安全完成。
2)电缆插头/插座
配备与场地接电箱的电缆插座相配套的大车电缆插头。
3)供电电缆
大车卷盘电缆一般需采用进口品牌,如NEXANS、Prysmian、Igus原厂生产专用产品。
4)地面翻转装置
将电缆在地面和固定体上固定。电缆夹一端为铰链,一端通过蝶形螺母紧固,可方面电缆拆卸。
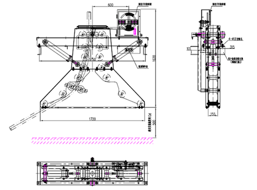
5)导缆架
RTG的大车运行速度较高,一般在100m/min以上,需要采用带有缓冲结构的导缆架,我公司自主研发的BDL-2型就是专为此要求设计。主要功能如下:
• 具有缓冲功能,能有效吸收大车启动时的冲击,保证电缆运行安全;
• 具有电缆预松、过紧保护功能,避免了电缆过紧和过松现象;
• 允许电缆弯曲弧度大,支承滚轮数量多(单侧至少7个),能有效提高电缆使用寿命;
• 采用免维护轴承的支承滚轮,支承滚轮两端轴承采用迷宫式组合密封结构,密封效果好,支承滚轮寿命长;
• 主要由上下侧板、尼龙支承滚轮、摆杆装置、安装横梁、弹簧缓冲器、液压阻尼器、感应控制装置等部件组成,其结构见下图2:

图2 缓冲式导缆架结构图
6)电缆卷筒
RTG大车电缆卷筒装置由电缆卷盘、减速机构、滑环箱、电磁制动变频电机、导缆架、凸轮限位、绝对值编码器、卷盘控制系统组成。电缆有效长度为以场地接线箱位置为起点大车单向有效行程一般不小于 250 米。
7)主变压器
变压器是负责将AC960V市电降压至RTG原有的供电电压等级,一般采用SCB14型干式变压器,其能效等级为二级能效,符合GB20052-2013国家标准,空载损耗和负载损耗低,具有较高的效率。变压器参数如下:
• 额定频率:50HZ;
• 额定容量:400KVA;
• 变比:960VAC/400VAC;无载调压,±5%和±2.5%抽头;
• 接线方式:Dyn11;
• 空载损耗:≤0.5KW;
• 空载电流:≤0.5%;
• 短路阻抗:≤6%;
• 冷却方式:自然风冷和强迫风冷;
• 变压器外壳材料采用2mm厚304#不锈钢外壳,防护等级IP54;
8)控制系统
电缆卷盘的控制方式采用速度+力矩相结合的控制方式,在空盘和满盘范围内的扭矩为线性变化。卷盘控制系统的PLC通过采集RTG大车的实时速度,并根据绝对值编码器相对应的卷盘实时圈数,精准对马达进行速度控制,同时控制变频器的实际输出转矩,确保所受拉力始终处于卷拉悬挂地面以上电缆重量在合理范围内,最大程度的保证电缆不受损伤。不管大车以任意速度运行,电缆卷入或卷出的线速度能和大车的运行保持同步,即使在大车运行变速/纠偏工况下电缆进入/放出导缆器都会保持平顺,不能触发导缆器上的过张力保护装置,更不能出现电缆突然紧绷/松弛的现象。
2、 锂电池储能转场系统的改造
RTG在脱离电网转场时,动力电源将完全由锂电池组供电。电池组的功率可以满足在吊具空载或带箱的情况下,起升慢速运行、大车和小车全速运行。
在RTG的电气房对面鞍梁上配置一台锂电池储能动力房,动力房分为电池舱和电气舱。电池舱内部安装一套锂电池组和BMS、空调、自动消防系统;电气舱内安装配套DC-DC充放电装置、CVCF辅助逆变装置、EMS能量管理系统、应急充电装置等电池系统的相关电控设备,以及“油改电”所需配套的市电电源装置、电缆卷筒电控系统、有源整流回馈装置等等。
具体实施方案见“混合动力”下的“集装箱堆场起重机转场应用“。
3、 能量回馈系统的改造
RTG在制动过程特别是带集装箱下降过程中,电机处于再生发电状态,一般通过能耗制动电阻发热的方式消耗掉这一部分由势能转换而来的电能。这对能量来说是一种严重的浪费,而且耗能过程产生大量热量污染环境。
在动力房配置一套有源整流回馈装置(简称AFE),将电机在制动过程中产生的能量回馈到电网,供电网上其它用电设备使用,这使RTG在单位时间消耗电网的电能下降,从而达到进一步降低生产能耗的效果。
整流回馈装置参数要求如下:
• 额定功率≥250KW;
• 输入电压范围:380~480V(±15%);
• 输入频率范围:45~55Hz;
• 功率因数:≥0.98;
• 电压谐波总畸变率THDu≤5%;
• 电流谐波总畸变率THDi≤5%。
三、 节能减排效果
“油改电”主要聚焦于两个核心目标,一是降低成本,二是减少污染。本次成本分析以当前柴油平均价格 7.00元/L 和工业用电平均价格每千瓦时 1.20 元为基准。而污染指标主要依据 CO2 排放量来衡量,其换算标准如下:1kW·h = 0.0001229t 标煤,1L 柴油= 0.001253106t 标煤,1t标煤等同于 2.1010t CO2。
整个测试过程最大限度地模拟了RTG收放箱作业的实际工况,且需连续运行 2 小时。每次测试中,每台 RTG 都需要完成 30 箱次的操作量,也就是说,吊箱速度为 15 箱次/小时,该作业效率与实际作业相当接近。与此同时,分别选取了三台同类型的RTG,并最终取其平均值。下表1为3台RTG的平均能耗折算表。

表1 3台RTG平均能耗表
1)在设计的测试工况下,柴油发电单箱平均能耗为1.42L,市电单箱平均能耗为1.70 kW·h;
2)柴油发电单箱平均耗费资金9.94元,市电单箱平均耗费资金2.04元,市电相对柴油发电单箱平均节约79.5%;
3)柴油发电单箱平均排放CO2为3.74×10-3t,市电单箱平均排放CO2为4.39×10-4t,市电相对柴油发电单箱平均少排放88.3%。
根据以上测试结果,如按照每台常规RTG每年操作10万集装箱,每箱平均节省资金约7.9元,每台RTG每年可节省79万元。一般两年时间即可收回投资收益。
四、 结论
实践已然证明,RTG“油改电”项目宛如一颗璀璨的明珠,在经济效益和社会效益的领域大放异彩。如今,它已成为各港口企业节能减排工程的先锋队,引领着绿色发展的潮流。
其广泛的推广与应用,不仅对建设资源节约型、环境友好型港口企业具有重大意义,更是为打造“绿色港口”、节约能源、降低碳排放贡献了不可或缺的力量。
五、 典型案例
我公司在国内的佛山南海国际、福州江阴港、江苏连云港、山东青岛港、福建厦门港、上海港等众多知名港口的同类RTG上的应用业绩已超 50 台,为客户带来了巨大的投资收益,在行业中树立了标杆。这证明了我们的专业能力和领先地位,我们将秉持初心,一如既往地砥砺前行。